暖かくなるころには2つのリノベな部屋…

少し先の話ですが、古い2DKを2部屋リノベーションします。
どちらも以前にリノベした建物の別の部屋ですがちょうど3月のバタバタする時期と重なるので少し余裕をもって行う予定です。
1件は中区西川原の小橋マンションの105号…1階、奥の角部屋 もう一つは中区浜のマンション戸田の1階、奥の部屋
どちらも2部屋を一部屋に改装して洗面化粧台を設置予定です。
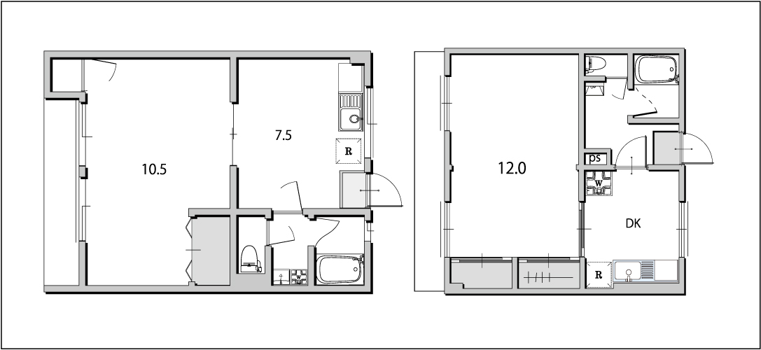
図面は以前に行った部屋の図面なので若干形も変わってくると思います。
特にマンション戸田はもともとの部屋の形が少し違うのでこのままの図面通りにはならないと思います。
ただ小橋マンションは明るい木目調の部屋をイメージして直す予定…
マンション戸田は無印さんのリノベのイメージで直す予定になっています。
ご紹介できるのは暖かくなったころになるかもしれませんが広い部屋で家賃はリーズナブルという方には朗報になるように…
詳しくはお問合せください。



