中区原尾島にちょっと贅沢な戸建て賃貸…

2022年6月頃また一つ賃貸物件が増えます。
4LDKの戸建て…2年前に国富に建築して好評だった賃貸なのに広くてゆったり贅沢な戸建てを
今度は中区原尾島に建築中です。
家賃設定は12万円を考えているところですが、
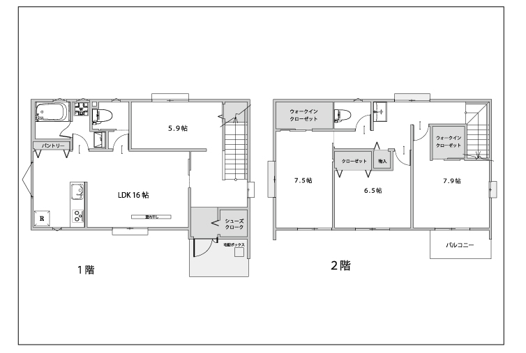
1階は16帖の対面キッチンを設置した南向きのLDKと5.9帖の洋室
2階はすべて南向きの洋室3部屋でそのうちの2部屋にはウォークインクローゼット設置
前回の国富の戸建てと同じく1階にも2階にも洗面とトイレを設けています。
賃貸というには少々広めで駐車場も2台(カーポート)+1台を予定しています。
現在、外観部分はほとんど完成しているのであとは内装と設備にかかっている状況です。
周辺環境は天満屋ハッピータウン原尾島店まで徒歩12分
Chiffonさんや操山中学も近い場所にある戸建てです。
5月になれば進捗状況を少しずつお知らせ予定!!! お楽しみに…



